A Blue House in the Heart of Brașov
During our URBACT LINKS workshop in Brașov we had the opportunity of a site visit the Offices of the Evangelic Church in the so called Blue House, a retrofitting project by Exhibit Arhitectura (Johannes Bertleff, Dragos Oprea).
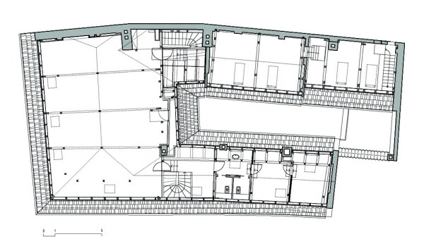
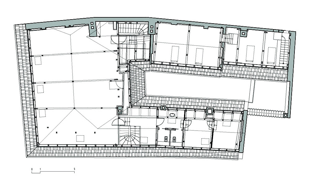
Located in the center of Brașov, nearby the famous Black Church, the house dates back to the 1st half of the 18th century and features three major construction phases along with other minor extensions and modifications. The current facade cavities and outside ornaments were built in 1820.
The building changed its owners several times until it became the property of the Evangelic Church at the beginning of the 20th century. 1950 it was then nationalised, during the communist regime and given back to the Church after the 1989 revolution. The restoration started in 2005 as the building was in quite a bad shape, with various structural damages and severe deterioration.
The initial assignment was not very ambitious, it was as an attempt to save the house. During the 4 years construction works the project evolved into a more comprehensive retrofitting, from the foundations to the space under the roof. All the extensions and improper compartments were taken down.
The valuable architectural elements were restored and given the deserved attention and value, based on the deep understanding of the building typology and functioning.
Below you can see the inner court before, during and after renovation.
A major problem of the building, common to many historic buildings of the city center of Brașov, was the lack of proper foundations, with moisture climbing up the walls.
The renovation of the wooden roof structure was the occasion to use this large space, insulating the roof surface and opening windows on the backside of the building, invisible from the street.
Locally sourced and well skilled workforce was necessary to restore the existing wooden doors and windows or replace them with similar ones.
Even the chimneys were carefully re-built according to the original shape and techniques.
The result is a modern and essential interior fully in harmony with the historic spitir of the building and built environment.
The tree that survived 4 years deep construction works in the small courtyard next to the building witnesses the sensitive approach with which the project has been designed and built.
Thanks to Johannes Bertleff for the site visit and project documentation, including professional photographs © Vlad Slavic.
For more information and pictures see the project review on Archdaily
































Let’s hope more traditional buildings of Brasov will be treated kindly and the skills of the architects will be put at good use! There is a lot to be said about the need of examples of good practice over here! Well done to Johannes Bertleff/ Dragos Oprea’s team and thank you Antonio for writing about it!